ländleimmo.at / Mietobjekt / Gewerbliche Immobilie / Büro / Ordination / Vorarlberg / Feldkirch / Mäder / Mäder – Büro- und Werkstattfläche mit ca. 48 m²

Mäder – Büro- und Werkstattfläche mit ca. 48 m²

images icon

N/A

Grundriss

images icon

48,00 m²

Nutzfläche

Preis auf Anfrage

Preise

Preis auf Anfrage

Objekt Informationen

Nutzfläche 48,00 m²
Objektart Gewerblich
Objekttyp Büro / Ordination
Verfügbar ab sofort

Empfohlene Services unserer Partner

Objekt Beschreibung

Wir vermieten:

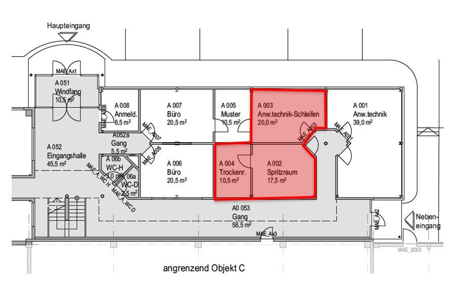
  •  Büro- und Werkstattfläche mit ca. 48 m²
  • im Erdgeschoss
  • ab sofort verfügbar 
  • Mietpreis auf Anfrage
  • 3 BMM Kaution
  • provisionsfrei

 

Die Farbfabrik ist ein optimaler Standort für kleine und mittlere Unternehmen. Durch die nahegelegene Grenze zur Schweiz bietet die Farbfabrik auch ideale Lösungen für international tätige Firmen. Außerdem stehen ausreichend Parkplätze für Mieter, Kunden und Besucher zur Verfügung.

 

Angehängte Dokumente