ländleimmo.at
/
Kaufobjekt
/
Wohnung
/
Allgemein
/
Vorarlberg
/
Bludenz
/ Bludenz
/
2 Zimmerwohnung mit Garten in Bludenz zu verkaufen (vermietet bis 31.10.2027) KP mit USt.
2 Zimmerwohnung mit Garten in Bludenz zu verkaufen (vermietet bis 31.10.2027) KP mit USt.
2 Zimmer
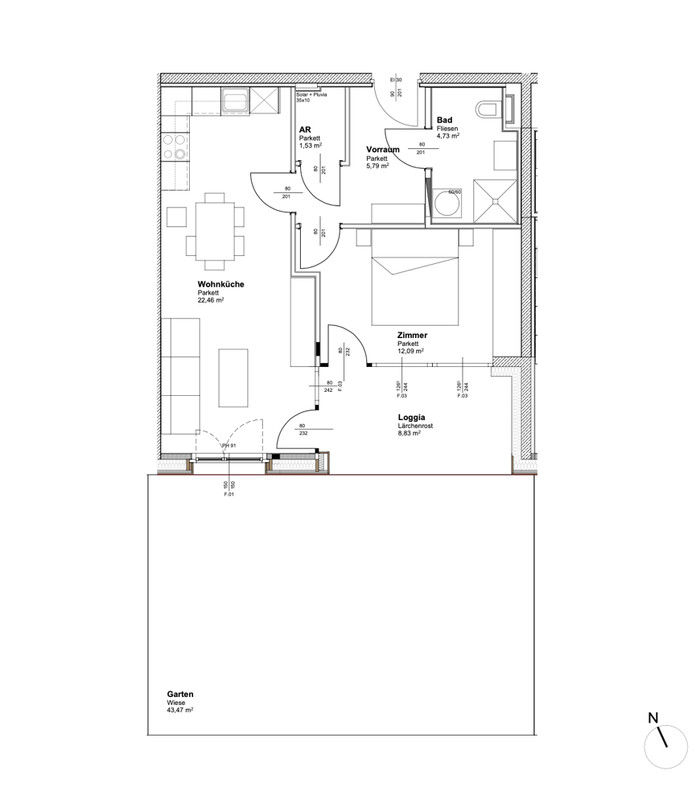
Grundriss
47,00 m²
Wohnfläche
€ 220.000
Preise
Kaufpreis
€ 220.000
Objekt Informationen
Wohnfläche
47,00 m²
Zimmer
2
Bautyp
Neubau (bis 5 Jahre)
Baujahr
2018
Objektart
Wohnung
Objekttyp
Allgemein
Terrasse
Vorhanden
Garten
43,47 m²
Keller
5,00 m²
Heizung
- Gas
- Fußbodenheizung
Verfügbar ab
sofort
Gesamtanzahl Stellplätze
1
Heizwärmebedarf (HWB)
25,00 kwh/m²a
Klasse Heizwärmebedarf (Klasse HWB)
B
Gesamtenergieeffizienz-Faktor (fGEE)
0,59 kwh/m²a
Klasse Gesamtenergieeffizienz-Faktor (Klasse fGEE)
A+
Externe ID
Bodenseeimmo_546
Parkplatz
- (Tief-)Garage
Ausstattung:
-
Einbauküche
-
Boden: Parkett
-
Bad mit: Dusche
-
Lift
Empfohlene Services unserer Partner
Objekt Beschreibung
2 Zimmerwohnung mit Garten in Bludenz zu verkaufen (vermietet bis 31.10.2027) KP mit USt.
Die Nähe zum Stadtzentrum und eine überdurchschnittliche Infrastruktur zeichnen diese Wohnung in einer schönen Wohnanlage im Brunnenfeld aus. Schi und Wanderandergebiete sind praktisch vor der Haustüre. Die Wohnung ist über den Hauseingang und die Tiefgarage barrierefrei erreichbar, dies trägt so zu mehr Lebensqualität bei.
Zu Fuß erreichen Sie die Stadtbuslinie 2 sowie die Landbusliene 90 und den Bahnhof Bludenz-Moos in wenigen Minuten.
Der Boden im Wohn-/Schlafbereich ist mit einem Parkettboden ausgelegt, die Heizung erfolgt über eine Fußbodenheizung. Das Badezimmer wurde mit weißen Wand- und dunklen Bodenfliesen versehen. Die Wohnung verfügt zusätzlich über ein Kellerabteil mit einer Fläche von ca. 5 m².
Das Objekt kann gemäß Wohnungseigentumsvertrag auch gewerblich genutzt werden (Büro, Praxis, Kanzlei, Atelier oder ähnliches).
Das Objekt kann auch (Stand November 2024) als Zweitwohnsitz genutzt werden
Die Betriebskosten belaufen sich auf EUR 262,04 inkl. Reparaturfonds.
Der Reparaturfonds-Stand per 31.12.2024 beträgt EUR 165.063,36
Derzeit ist die Wohnung vermietet (bis 31.10.2027)
Die Mieteinnahmen belaufen sich auf derzeit EUR 779,90 inkl. USt. zzgl. EUR 200,00 Betriebskosten.
Energieausweiswerte:
HWB: 25 kWh/m²a (B)
PEB: 103 kWh/m²a (B)
CO2: 19 kg/m²a (B)
fGEE: 0,59 (A)
Kaufpreis Wohnung: EUR 220.000,00 inkl.USt
Kaufpreis TG-Platz: EUR 24.000,00 inkl USt
Gesamt: EUR 244.000,00 inkl USt
Die Umsatzsteuer ist ausweisbar!
Nebenkosten:
Grunderwerbssteuer: 3,5% der Gegenleistung
Grundbucheintragungsgebühr: 1,1%
Anwalts-/Treuhandkosten: 1,2% des Kaufpreises inkl. 20% USt zzgl. Barauslagen
Bei Fremdfinanzierungen fallen Bank-Gebühren (lt. Vertragsbestimmungen der Bank) an
Verschaffen Sie sich selbst ein Bild von diesem Objekt und melden Sie sich bei uns für einen unverbindlichen, kostenlosen Besichtigungstermin.
Alle Angaben nach bestem Wissen und Gewissen und stützen sich auf die vom Verkäufer zur Verfügung gestellten Informationen. Flächenangaben sind ca-Angaben.
Irrtum und Zwischenverkauf vorbehalten. Dieses Expose ist eine Vorinformation, als Rechtsgrundlage gilt alleine der abgeschlossene Kaufvertrag. §15 der Maklerverordnung gilt als vereinbart.
Die Nähe zum Stadtzentrum und eine überdurchschnittliche Infrastruktur zeichnen diese Wohnung in einer schönen Wohnanlage im Brunnenfeld aus. Schi und Wanderandergebiete sind praktisch vor der Haustüre. Die Wohnung ist über den Hauseingang und die Tiefgarage barrierefrei erreichbar, dies trägt so zu mehr Lebensqualität bei.
Zu Fuß erreichen Sie die Stadtbuslinie 2 sowie die Landbusliene 90 und den Bahnhof Bludenz-Moos in wenigen Minuten.
Der Boden im Wohn-/Schlafbereich ist mit einem Parkettboden ausgelegt, die Heizung erfolgt über eine Fußbodenheizung. Das Badezimmer wurde mit weißen Wand- und dunklen Bodenfliesen versehen. Die Wohnung verfügt zusätzlich über ein Kellerabteil mit einer Fläche von ca. 5 m².
Das Objekt kann gemäß Wohnungseigentumsvertrag auch gewerblich genutzt werden (Büro, Praxis, Kanzlei, Atelier oder ähnliches).
Das Objekt kann auch (Stand November 2024) als Zweitwohnsitz genutzt werden
Die Betriebskosten belaufen sich auf EUR 262,04 inkl. Reparaturfonds.
Der Reparaturfonds-Stand per 31.12.2024 beträgt EUR 165.063,36
Derzeit ist die Wohnung vermietet (bis 31.10.2027)
Die Mieteinnahmen belaufen sich auf derzeit EUR 779,90 inkl. USt. zzgl. EUR 200,00 Betriebskosten.
Energieausweiswerte:
HWB: 25 kWh/m²a (B)
PEB: 103 kWh/m²a (B)
CO2: 19 kg/m²a (B)
fGEE: 0,59 (A)
Kaufpreis Wohnung: EUR 220.000,00 inkl.USt
Kaufpreis TG-Platz: EUR 24.000,00 inkl USt
Gesamt: EUR 244.000,00 inkl USt
Die Umsatzsteuer ist ausweisbar!
Nebenkosten:
Grunderwerbssteuer: 3,5% der Gegenleistung
Grundbucheintragungsgebühr: 1,1%
Anwalts-/Treuhandkosten: 1,2% des Kaufpreises inkl. 20% USt zzgl. Barauslagen
Bei Fremdfinanzierungen fallen Bank-Gebühren (lt. Vertragsbestimmungen der Bank) an
Verschaffen Sie sich selbst ein Bild von diesem Objekt und melden Sie sich bei uns für einen unverbindlichen, kostenlosen Besichtigungstermin.
Alle Angaben nach bestem Wissen und Gewissen und stützen sich auf die vom Verkäufer zur Verfügung gestellten Informationen. Flächenangaben sind ca-Angaben.
Irrtum und Zwischenverkauf vorbehalten. Dieses Expose ist eine Vorinformation, als Rechtsgrundlage gilt alleine der abgeschlossene Kaufvertrag. §15 der Maklerverordnung gilt als vereinbart.